Hoofdstuk 5 – 1957-1966

 

 

 

Voor volledig scherm weergave, klik op de slideshow

1957 Brief Hub van Doorne gelukwensen 1
1957 Brief Hub van Doorne gelukwensen 2
1957 Fanfare in optocht
1957 Kampioenschap Valkenburg programma
1957 Krantenartikel kampioenschap Valkenburg
1957 Vertrek naar concours Valkenburg
1958 Huis-aan-huis flyer filmvoorstelling
1959 Rosenmontag in Krefeld
1959 Vriendschapsbanden met Krefeld
1960 Nieuwsbrief aan inwoners America ivm oprichting drumband
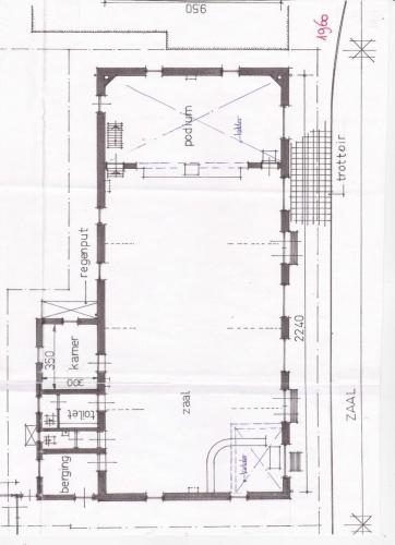
1960 Plattegrond Bondszaal
1960 Vriendschapsbanden met Krefeld in Krefeld 1
1961 Opening sportterrein
1963 Inventarisatie instrumenten en muzikanten
1965 Taptoe Horst drumband
1965 Tierpark Duisburg
1966 Concours Spaubeek krantenartikel
1966 Kampioenschap Deventer
1966 Landskampioenschap Deventer
1966 Pioniersbos
1966 Receptie concours Spaubeek
1966 Receptie landskampioenschap 1
1966 Receptie landskampioenschap 2
1966 Receptie landskampioenschap hr. en mevr. Adams
Hans en Arie Derix op weg naar de Bondszaal
1957 Brief Hub van Doorne gelukwensen 1

 

Audiofragment: Amazonia – Jan Van der Roost (opname concours 2010)

 

 

 

Bladzijde 53, Beeldfragment: Tiroler Holzhacker Buab’n – Boemerang

 

 

Bladzijde 62, Audiofragment: Engelandvaarders – Walter Schild (opname generale repetitie Deventer 1966)

 

 

Bladzijde 62, Audiofragment: Divertimento Festivo – Otto Ketting (opname generale repetitie Deventer 1966)

 

 

Bladzijde 62, Audiofragment: Hanselijn – Henk v. Lijnschoten (opname generale repetitie Deventer 1966)